02476468101

office@ldarbyandson.co.uk

Case Studies

Case Studies

Recent Projects

George Eliot Hospital - Community Diagnostic Centre - Phase 2

Client: George Eliot Hospital NHS Trust

Project: Community Diagnostic Centre – Phase 2

Main contractor: William Gough and Sons Limited

Procurement route: Competitive tender.

Contract type: Pre designed, JCT Contract.

Contract Period: 32 weeks

Contract value: £ 1,102,000.00

Greenhill Health Centre

Client: NHS Properties

Project: Greenhill Health Centre, Lichfield Health Centre – Boiler room refurbishment and improvements to installations.

Main contractor: L Darby and Son Ltd

Procurement route: Competitive tender.

Contract type: Pre designed, JCT Contract.

Contract Period: 16 weeks

Contract value: £158,000.00

Overview:

This project was completed for NHS Properties under a JCT Contract, and was a fully pre-designed scheme by the nominated Consulting Engineers.

The scheme involved the total refurbishment of the Boiler room area during the winter of 2023 / 2024 and required a temporary boiler plant to be installed to provide heating and hot water services to the Health Centre while the works were undertaken.

L Darby and Son Ltd were the Principal Contractor on the project.

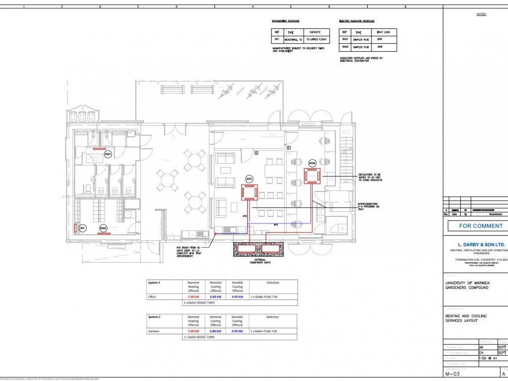
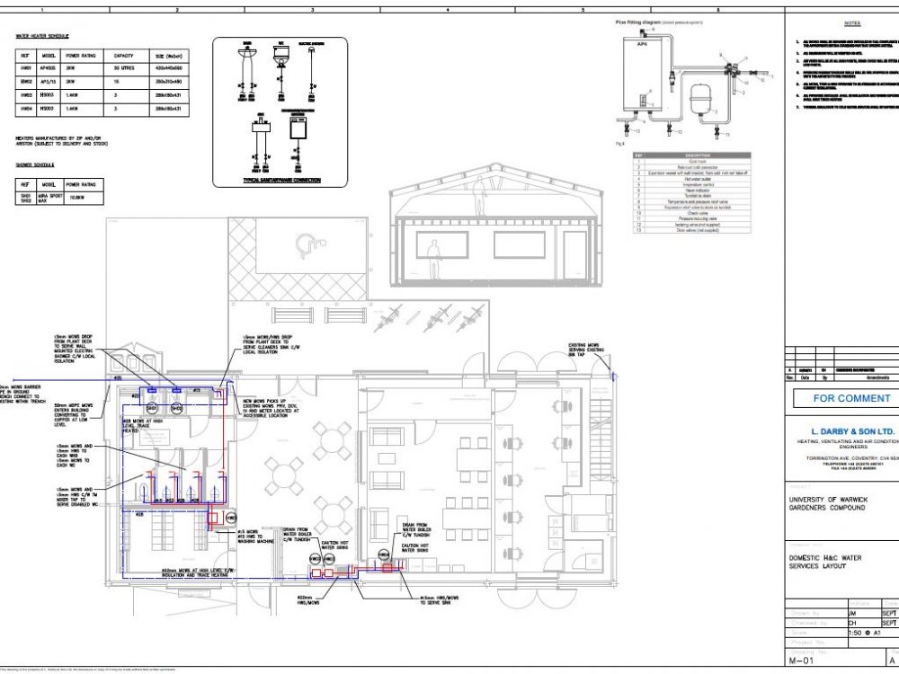
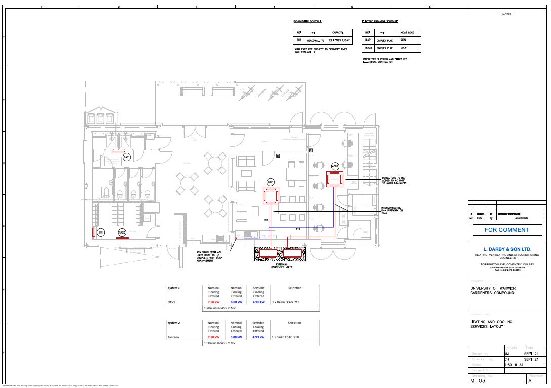
University of Warwick, Gardeners Compound

Client: University of Warwick

Project: Gardeners Compound

Main contractor: Chiel Construction Ltd

Procurement route: competitive tender

Contract type: Design & Build  

Contract Period: 18 weeks

Contract value: £95,000.00

University of Warwick, Unitemps

Client: University of Warwick

Project: Unitemps office refurbishment  

Main contractor: Chiel Construction Ltd

Procurement route: competitive tender

Contract type: Design & Build

Contract Period: 12 weeks

Contract value: £40,000.00

Warwick Hospital_ Endoscopy

Client: Warwick Hospital 

Project: Endoscopy Unit

Main contractor: Speller Metcalfe Ltd

Procurement route: competitive tender

Contract type: JCT minor works  

Contract Period: 18 weeks

Contract value: £320,000.00

Univeristy of Warwick_ Volker Lab

Client: University of Warwick 

Project: Volker Lab Refurbishment

Main contractor: William Gough Ltd

Procurement route: competitive tender

Contract type: Design & Build  

Contract value: £145,000.00

Sport England - Lilleshall Archery Centre

Client: Sport England

Project: Lilleshall Performance Archery Centre 

Main contractor: Speller Metcalfe Ltd

Procurement route: competitive tender

Contract type: Design & Build

Contract value: £260,000.00

Leamington Spa Hospital, CERU

Client: Leamington Spa Hospital

Project: Central England Rehabilitation Unit (CERU)

Main contractor: Speller Metcalfe Limited

Procurement route: Competitive tender.

Contract type: Pre designed, JCT Contract.

Contract value: £ 1,100,000.00

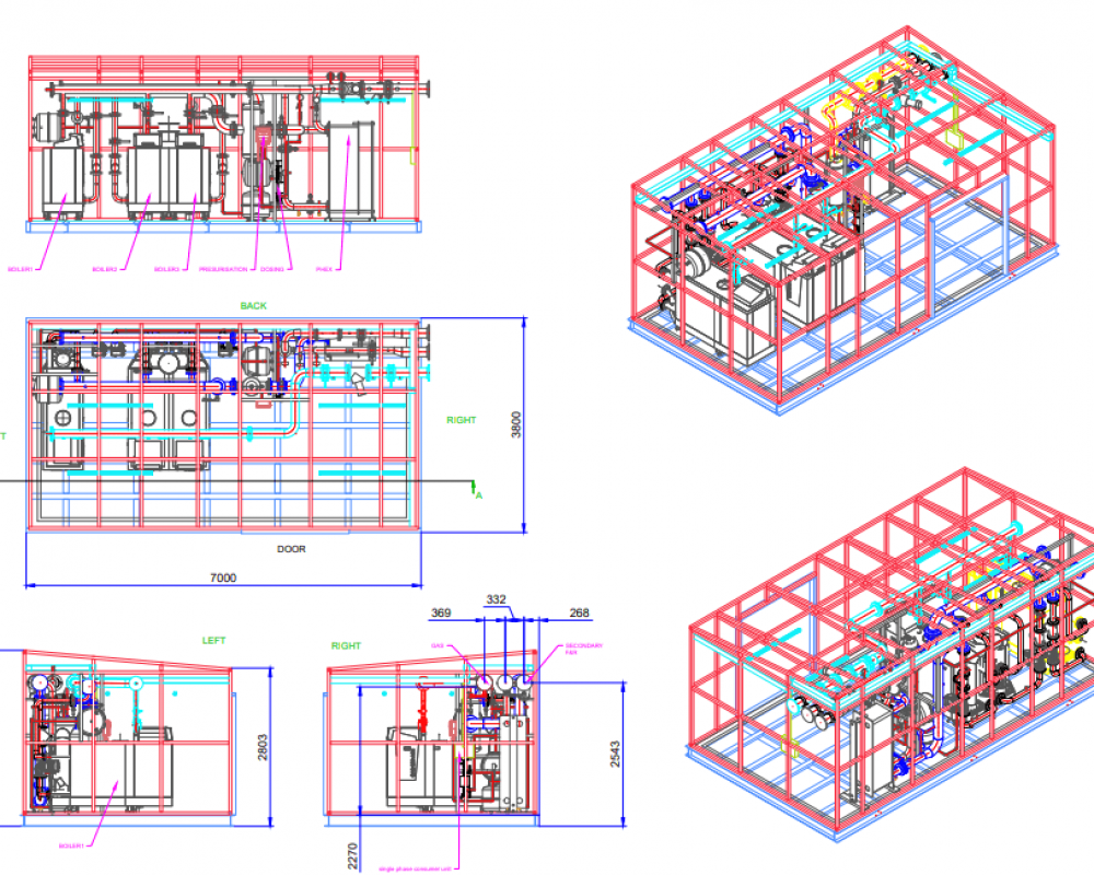
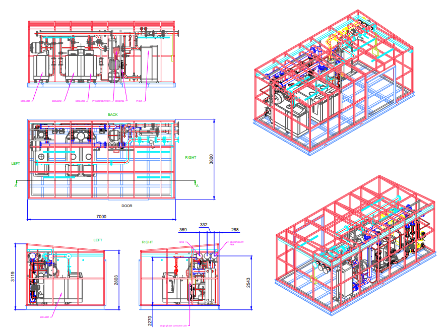
Caludon Centre, Packaged Boiler Room

Client: Coventry & Warwickshire Partnership NHS Trust                           

Project: Caludon Centre, Packaged Boiler Plant

Main contractor: L. Darby & Son Ltd

Procurement route: competitive tender

Contract type: Design & Build   

Contract value: £200,000

Project Overview:

Our team delivered a bespoke packaged plant room solution to improve heating efficiency and reliability at the Caludon Centre, part of Coventry and Warwickshire Partnership NHS Trust. The Centre, located on the University Hospital Coventry and Warwickshire (UHCW) site, provides vital inpatient and outpatient mental health services, making continuity of heating and hot water essential.

When the existing boiler plant required replacement, the Trust needed an immediate, efficient, and resilient solution that would minimise downtime while supporting long-term decarbonisation plans. Modern condensing boilers offered the fastest route to improved performance, and a packaged plant room provided the flexibility needed for future estate-wide upgrades.

We designed and delivered an externally sited packaged plant room housing two high-efficiency condensing boilers, providing a total output of 1,800 kW. The system incorporates a plate heat exchanger for seamless integration with the existing distribution network, along with all necessary pipework, controls, air/dirt separation, dosing, lighting and power distribution. Space was intentionally built in for future equipment to support the Trust’s net-zero roadmap.

Early engagement with the Trust’s estates team ensured the design met all operational, safety and logistical requirements. Collaborative planning allowed swift resolution of site constraints, ensuring best-practice installation with minimal disruption to clinical services.

Manufactured off-site, the packaged plant room was delivered fully assembled, significantly reducing on-site labour, programme time and hot works—supporting the Trust’s strict safety and compliance standards.

Once connected, commissioned and handed over, the new system immediately improved heating reliability and efficiency at the Caludon Centre.

The Trust has expressed its satisfaction with the high build quality, smooth installation process and future-ready design.

Our team is proud to have supported the Trust in taking an important step toward a lower-carbon estate while enhancing resilience in a mission-critical healthcare environment.

Caludon Centre, Westwood Refurbishment

Client: Coventry & Warwickshire NHS Trust

Project: Caludon Centre, Westwood Ward Refurbishment

Main contractor: Willmott Dixon Interiors Ltd 

Procurement route: Nominated Contractor

Contract type: Pre-designed  

Contract value: £1,000,000

George Elliot Hospital NHS Trust

Client: George Elliot Hospital NHS Trust

Project: A&E and Resuscitation extension

Main contractor: E. Manton Ltd

Procurement route: competitive tender

Contract type: Pre-designed  

Contract value: £600,000

Autism West Midlands

Project: Gorse Farm    

Main contractor: William Gough & Sons Ltd

Procurement route: competitive tender

Contract type: Design & Build

Contract value: £200,000

Birmingham Community Healthcare NHS Foundation Trust

Project: Walmley Health Centre    

Main contractor: L. Darby & Son Ltd

Procurement route: competitive tender

Contract type: Pre-designed  

Contract value: £180,000